ZAŠTO DRVO?
ZAŠTO DRVO - ALUMINIJUM?
DRVENI PROIZVODI
Drvena stolarija nudi elegantna i funkcionalna rešenja za Vaš dom. U dom unose lepotu, toplinu i daju mu lični pečat. Ukoliko gradite ili renovirate dom ili poslovni prostor, odlučite se za drvenu stolariju koja će ispuniti sve vaše zahteve i potrebe - ekološka je, elegantna, funkcionalna i odličan izolator. Drvena stolarija je u potpunosti ekološki prihvatljiva jer drveni okviri neće zagađivati životnu sredinu na kraju svog životnog ciklusa. Nakon što ih zamenite, oni će istruleti i raspasti se. Drveni prozori u našoj ponudi se izrađuju samo od ekološki prihvatljivih materijala.
Drveni prozori pored osećaja udobnosti i topline, imaju dokazano najviši stepen toplotne i zvučne izolacije od svih materijala. Zbog dobrih termičkih karakteristika drveni prozori se se preporučuju za niskoenergetske objekte.
Drvena stolarija koja je u našoj ponudi je izrađena od materijala koji je potpuno prirodan i sertifikovan od strane firme Munchinger iz Nemačke. Garancija kvaliteta je upotreba materijala, okova, okapnica i boja renomiranih evropskih proizvođača. Sertifikovani drveni materijal firme Munchinger iz Nemačke, okov Nemačke firme WinkHaus, koji omogućava obično otvaranje (oko vertikalne ose) i ventus (otvaranje oko vertikalne i horizontalne ose), kao i Security okov, okapnice proizvođača Gutmann, zaptivci firme Dewenter (dupli zaptivni sistem za krilo osigurava idealno zatvaranje), lakovi i boje isključivo na vodenoj bazi finske firme Teknos u širokom spektru boja, garantuju veliku izdržljivost na spoljašnje i unutrašnje uticaje.

Koristi se Kleiberit vodootporno lepilo, grupe opterećenja D4, po standardu DIN EN 204. Kombinacijom drvenih profila od 78 mm i 92 mm sa troslojnim termo staklom dobija se vrednost toplotne izolacije Uw=0.8 W/m2K. Koeficijent propustljivosti toplote jednak je koeficijentu završenog zida od cigle debljine 56 cm. Zvučna izolacija ima vrednosti Rw = 32dB-47dB sa standardnim troslojnim termo staklom ugrađenim u konstrukciju prozora.
- Čamovina (Smreka): SISTEM 78mm (Uf-0,99 W\m2K), SISTEM 92mm (Uf-0,87 W\m2K)
- Meranti: SISTEM 78mm (Uf-1,1 W\m2K), SISTEM 92mm (Uf-0,95 W\m2K)
- Jasen: SISTEM 78mm (Uf-1,4 W\m2K), SISTEM 92mm (Uf-1,3 W\m2K)
- Hrast: SISTEM 78mm (Uf-1,4 W\m2K), SISTEM 92mm (Uf-1,3 W\m2K)
Laminirano drvo je lepljeno drvo koje unapređuje fizičke karakteristike samog drveta, ističe njegovu lepotu i omogućava njegovo lakše oblikovanje. Laminirano drvo sastoji se od pojedinačnih drvenih slojeva različitih veličina, koji su zalepljeni zajedno u kontrolisanim industrijskim uslovima uz pomoć posebnih veziva.
Drvena stolarija se lako može ofarbati i na taj način dobijate stolariju u željenoj boji!
Lakovi koje koristimo nude veliki asortiman boja (RAL), veoma su izdržljivi i otporni na spoljašnje i unutrašnje prilike i uticaje. Boje koje koristimo su Finskog proizvođača TEKNOS i isključivo su na vodenoj bazi.

U našoj ponudi su dva sistema drvene stolarije - DRVENI SISTEM 92 i DRVENI SISTEM 78, kao i dva sistema kombinacije drvo - aluminijum - ALUMINIJUMSKI SISTEM 78 i ALUMINIJUMSKI SISTEM 92
DRVENI SISTEM
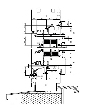
DRVENI SISTEM 92
Ovaj proizvod je sa okovom ActicPilot sa osnovnom sigurnošću +RC2 i duplim zaptivnim sistemom na krilu. Boja zaptivne gume može biti bela, bež, braon i crna, a boja profila po RAL karti.
Toplotna izolacija: Uw = 0.75 - 1.1 W/m2K
Zvučna izolacija: 34 - 44 dB
Dimenzije:
Štok: 92mm / 78mm
Štok + krilo: 128mm
Termopan: 44mm, 52mm
Srednja guma: dve gume na krilu
Boja: po RALu ili transparentni lakovi
Boja gume: Bela, bež, braon, crna
Aluminijumska obloga: Da
Garancija: 5 godina


DRVENI SISTEM 78
Drveni profilni sistem za lepotu i harmoniju u vašem domu, kancelariji ili vili. Drvo je ekološki materijal. Potpuno je prirodno i stoga jedino moguće rešenje za kuće izgrađene od prirodnih materijala - faktor koji je izuzetno važan za zdravlje stanovništva. Ovaj proizvod ima osnovnu sigurnost + RC2, ActivPilot okov i dupli zaptivni sistem na krilu.
Toplotna izolacija: Uw = 0.8 - 1.2 W/m2K
Zvučna izolacija: 32 - 44 dB
Dimenzije:
Štok: 78mm / 78mm
Štok + krilo: 116mm
Termopan: 32mm, 40mm
Srednja guma: dve gume na krilu
Boja: po RALu ili transparentni lakovi
Boja gume: Bela, bež, braon, crna
Aluminijumska obloga: Da
Garancija: 5 godina


ALUMINIJUMSKI SISTEM
Prozore drvo-aluminijum preporučujemo za ekstremne uslove eksploatacije jer postavljeni aluminijumski ram spolja obezbeđuje dodatnu zaštitu drvenog dela prozora. Time se praktično obezbeđuje višedecinijska zaštita, funkcionisanje i besprekoran izgled prozora bez potrebe ponovnog bojenja.
Prozori i vrata su izrađeni od lameliranog drveta (čamovina, meranti, hrast, jasen) 78 mm i 92 mm, spolja obložen aluminijumskim profilima, sto čini jedinstven sistem prozora drvo-aluminijum.
Drveni deo ovih prozora je izrađen u istim sistemima i sa istim karakteristikama kao i kod drvenih prozora samo je dizajn različit. Štok i krilo od laminata. Drvo koje se koristi za izradu laminata je veštački sušeno i kondicionirano na relativnu vlažnost 8-12%. Ovakvom izradom drvo se maksimalno umiruje i sprečavaju se deformacije.
Profili sadrži dupli zaptivni sistem na krilu i efikasan sistem za odvođenje eventuelne vode iz prozora. Ugrađeno je termoizolaciono troslojno staklo kojom se postiže toplotna izolacija: SISTEM 78mm Uw = 1,2 - 0,8W/m2K, SISTEM 92mm Uw = 1,1 - 0.75W/m2K
Aluminijumski deo je izrađen od postojanih legura i plastificiran bojama po RAL karti ili u boju koja imitira boju i strukturu drveta. Aluminijumski deo je čvrstom ali elastičnom vezom pričvršćen za drvo. PVC spojnica odvaja aluminijum od drvenog dela, tako da nigde nema kontakta između ova dva materijala različitih dilatacionih osobina. Ovakvom vezom izbegnuta su naprezanja drvenog dela prozora prilikom širenja i skupljanja aluminijuma. Sistem aluminijuma obezbeđuje odvođenje eventualne vode iz prozora tako da voda ne dolazi do drvenog dela prozora.
ALUMINIJUMSKI SISTEM 78
Profilni sistem Komfor od drveta i aluminijuma sa sistemom duplog zaptivanja na krilima. Dostupan je u beloj, bež, braon i crnoj boji. Obezbeđen sa osnovnom sigurnošću+ RC2, ActivPilot okov i aluminijumska obloga.
Toplotna izolacija: Uw = 0.8 - 1.2 W/m2K
Zvučna izolacija: 32 - 44 dB
Dimenzije:
Štok: 68mm / 78mm
Štok + krilo: 122mm
Termopan: 40mm, 50mm
Srednja guma: dve gume na krilu
Boja: po RALu ili transparentni lakovi
Boja gume: Bela, bež, braon, crna
Aluminijumska obloga: Da
Garancija: 5 godina
ALUMINIJUMSKI SISTEM 92
Profilni sistem Komfor od drveta i aluminijuma sa duplo zaptivnim sistemom na krilu. Dostupan u bojama bela, bež, braon i crna. Koristi se okov ActivPilot sa osnovnom sigurnošću + RC2.
Toplotna izolacija: Uw = 0.75 - 1.1 W/m²K
Zvučna izolacija: 32 - 44 dB
Dimenzije:
Štok: 68mm / 92mm
Štok + krilo: 136mm
Termopan: 44mm, 52mm
Srednja guma: dve gume na krilu
Boja: po RALu ili transparentni lakovi
Boja gume: Bela, bež, braon, crna
Aluminijumska obloga: Da
Garancija: 5 godina

Pošaljite upit ili nas pozovite i uverite se da smo najpovoljniji.